空间
免费作品
积分作品
设计师作品
如何赚积分
人物
动态
赛事活动
活动报名
设计分享
大赛服务
杂志
ACS创意空间
全球媒体资源
商城
家具
布艺
灯具
饰品
花艺
壁纸
图书
书店
图书出版
定制出版
出版征集
升级VIP
EN
微信登录
QQ登录
微博登录
|
登录
注册
分类
商业空间
全部
文教体育
全部
展览展示
全部
健康医疗
全部
办公空间
全部
酒店餐饮
全部
娱乐酒吧
全部
休闲会所
全部
公共交通
全部
导视设计
全部
软装陈设
全部
建筑设计
全部
环境景观
全部
住宅空间
全部
平面设计
全部
其它类别
全部
风格
全部
新中式
中式
欧式
美式
日式
东南亚
地中海
现代简约
乡村田园
工业
奢华
混搭
色系
全部
地域
国内
全部
北京
上海
天津
重庆
河北
山西
内蒙古
辽宁
吉林
黑龙江
江苏
浙江
安徽
福建
江西
河南
湖北
湖南
广东
广西
海南
四川
贵州
云南
西藏
陕西
甘肃
青海
宁夏
新疆
台湾
香港
澳门
国外
全部
美国
意大利
英国
加拿大
希腊
墨西哥
新加坡
南非
以色列
阿根廷
巴西
新西兰
澳大利亚
波兰
比利时
德国
丹麦
俄罗斯
法国
芬兰
荷兰
挪威
葡萄牙
西班牙
瑞典
瑞士
匈牙利
韩国
印度
印度尼西亚
日本
类型
全部
最多评论
最多喜欢
最多浏览
原创作品
转载作品
积分作品
免费作品
作品
文章
图书
商品
会员
装饰设计
首页
>
软装陈设
>
家居饰品
发布于 7年前
版权声明:版权归作者所有,禁止商业使用、禁止匿名转载,分享时请注明出处及附上链接
今朝装饰tt
人气
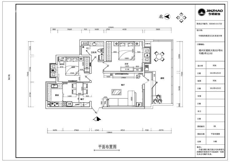
项目:装饰设计
设计:今朝装饰
二居室-80平米-装修设计
【业主档案】夫妻二人居住,偶尔有访客。
【业主要求】要求风格时尚中蕴含沉稳,简约中流露不凡。
【设计说明】
设计亮点:整体设计风格采用极简为基调,没有过多的套线、造型、花纹,完全使用颜色的搭配、冲撞,以及材质本身赋予我们的质感,令人眼前一亮却又不显得突兀,静下心来体味,是家的感觉。
色彩搭配:白色为基色,胡桃色沉稳中挥发出的暖色调光彩,韵味十足。
标签:
全部评论:
0
(发表评论请尊重他人、文明交流,拒绝发表有违法律、人身攻击的言论。每发表成功一条评论+1积分,被管理员删除的-1积分。)
最新
最热
分享到微信朋友圈
×
打开微信,点击底部的“发现”,使用“扫一扫”即可将网页分享至朋友圈。
关于
关于ACS
版权声明
免责声明
加入ACS
出版
图书出版
定制出版
出版征集
发行渠道
服务
大赛服务
如何参赛
广告服务
整合营销
VIP服务
帮助
积分获取
网站规则
常见问题
联系
联系ACS
在线咨询
ACS微博
Copyright 2026 Acs创意空间 all rights reserved.
粤ICP备05103301号-1
关注ACS创意空间公众号
即可收阅最新资讯