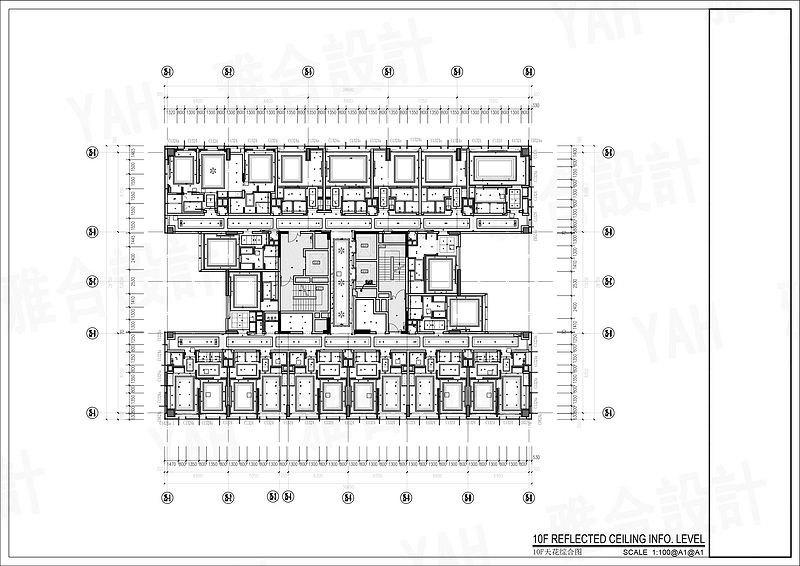
YAH | 深圳雅合深化设计 -- 酒店公寓项目案例图 -- 施工图
  • 首页 > 酒店餐饮 > 酒店
  • 发布于 7年前
  • 版权声明:版权归作者所有,禁止商业使用、禁止匿名转载,分享时请注明出处及附上链接
  • YAH雅合設计
人气

雅合深化设计,专业致力于室内空间深化施工图的设计与研究,以打造超详图纸为己任,注重细节。严格控制图纸的规范及效果呈现,以高效的工作流程,专业的深化服务,帮助解决施工中的问题提前出现在图纸上,将设计师的设计概念完美呈现于施工图上,对设计方案落实执行。

 

服务范围:方案深化、施工图深化、软装深化、竣工图深化、外观幕墙深化、机电整合与协调

合作对象:各大设计院、设计事务所、装饰公司、施工单位

合作单位:中航装饰集团、博大建设集团、恒大集团、华润置地、万科控股、华侨地产、招商地产等

标签: 雅合 深化 酒店 公寓 施工图
全部评论: 0
(发表评论请尊重他人、文明交流,拒绝发表有违法律、人身攻击的言论。每发表成功一条评论+1积分,被管理员删除的-1积分。)
关注ACS创意空间公众号
即可收阅最新资讯