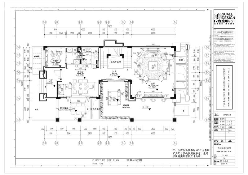
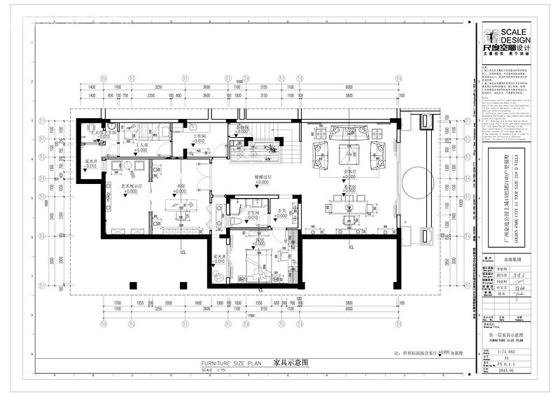
金地荔湖城21#D户型样板房
  • 尺度空间
  • 广东>东莞市
人气

本案为迎合广州的高端新贵阶层购房者的喜好,设计风格定位为新古典风格。吸取欧洲文化丰富的艺术底蕴,在家具、软装中透露出开放、创新的设计思想及其尊贵的姿容,对现代新贵族的审美和文化心理需求恰到好处,温馨中体现了现代人对享受生活的新主张,能让人进入后便有种自然而然的归宿感和舒适感。简洁、明晰的线条勾勒出欧洲新古典的神韵配上得体有度的装饰,让人感受到恬静典雅、悠闲舒适,成为现代人追求高品质生活的首选。设计师用新古典风格诠释本案。以低调沉稳中性色调散发无法隐盖的气势。整个空间设计大气奢华,无处不给人一种华丽之感。本设计散发的是具有厚度的形式美,摒弃繁复的装饰艳媚,以最经典的古典元素,最简约的表现手法,展现历史感和文化纵深感。虽用了很多材质如壁纸银箔、石材、木材、瓷砖等但是在整体把控上很严谨统一,色调统一,使人们有了一种舒适感受。

 

标签: 华丽 新古典 历史文化
全部评论: 0
(发表评论请尊重他人、文明交流,拒绝发表有违法律、人身攻击的言论。每发表成功一条评论+1积分,被管理员删除的-1积分。)
关注ACS创意空间公众号
即可收阅最新资讯