西安晴荷揀香铺
  • 首页 > 商业空间 > 购物空间
  • 发布于 10年前
  • 版权声明:版权归作者所有,禁止商业使用、禁止匿名转载,分享时请注明出处及附上链接
  • 一品设计
  • 陕西>西安市
人气

 

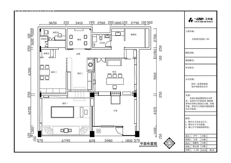
  晴荷揀香铺整体规划设计师不改变原结构和布局的基础上,将室外的院落,休闲庭院,乡间小路的室外环境等和现代规划有机结合,打造具有艺术性质亲和力的购物场所.

  位于大唐西市,特殊的地理位置和市场环境等因素的考量,店面装修主要放在传统精髓的继承,达成自然质朴的本心回归,以长桌聚四方,融合,包容等来解析沉香文化的真髓。

  应用开阔,开放的手法。摈弃繁华,没有采用吊顶,裸露原建筑其他设备管道,通风管道,空调管道。简化处理,提升空间使其空间开阔,运用科学划分空间的使用功能,使其空间整体统一!

  此项目材质采用旧院落木材 旧板材,将材料洗刷干净,直接制作空间屏风,隔断,门窗,家具。原原本本体现材料本质,大部分墙体采用细沙,石膏,腻子,水泥等合理调和直接批刷主体表面,部分墙体采用草泥墙,以及草墙的运用,更好的空间区域划分。质朴材料的运用是空间更接地气,并赋予了空间自由,舒适的艺术生命力。

  晴荷揀香铺的空间设计摈弃繁华,自然质朴的本心回归的主题思路,装饰材料应用原石,原木的素材以及空间合理布局,使其店面成为商业街区的风景线。根据空间的设计延伸店面CV CI的设计,更体现“沉香老店’平和!

 

标签:
全部评论: 0
(发表评论请尊重他人、文明交流,拒绝发表有违法律、人身攻击的言论。每发表成功一条评论+1积分,被管理员删除的-1积分。)
关注ACS创意空间公众号
即可收阅最新资讯