巴西里约热内卢MOPI小学扩建
  • Lilith
人气

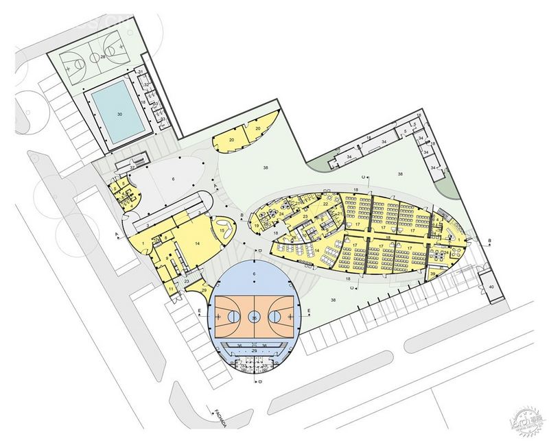
与委托方3年沟通协商后,MOPI又向周边扩展两块用地,将教室数量几乎翻倍,并开拓了一块体育场地。现在前方对着大街的建筑都归学校所支配。主要意图是让建筑工程六年以来的三个不同阶段的成果呈现出流动性和协调度:统一的理念。所有的材料和表皮遵循了最初的设计,除了在立面部分增加再循环使用的杆状木头混合微穿孔ACM。扩建的建筑平面呈椭圆形,与原有建筑保持同样层高。用于上课时创造性空间的开放式平台后退,为周边自然美景提供良好视角。

树在立面的抽象表达由胶合板(桉树)制成。它是专为服务人类使用而种植的非本地物种。多用于造纸工业(纤维),最近也经常用于土木建造。至于再生材料,此项目在对着街道的所有立面基础上,从旧电杆上回收利用木头。旧轮胎改造的互锁的橡胶地板覆盖了所有的娱乐区域,这种互锁系统维持土壤的渗透性。一些诸如雨水收集这种做法随处都有,主要在体育场地比较可见,在椭圆的每侧设有两个大型黄色雨水管道来收集雨水并用于浇灌植物、学校清洁及冲厕。所有淋浴热能由太阳能板提供,所有水管均有定时器。

将建筑分成不同体块,由阳台来连接,有助于所有空间的空气流通和自然制冷。每个体块的不同功能,要有一个强烈的识别度,这是做设计时重点表达的。半透明玻璃( Profilit Pilkgton )用于教室,在不扰乱学生注意力的情况下引入充足的自然光线。微穿孔ACM板是室外流通的物理屏障,对包含14个新教室的建筑整个内部立面来说也可以抵挡强光照射。同样的解决办法,与微穿孔铜板一起用于体育场地的立面构造。微穿孔立面让空气可以自由进出,同时过滤光线,将周边自然景色引入室内。聚亚安酯核心钢屋顶的使用有助于建筑采用一种被动式制冷方案。

标签: MOPI小学扩建 建筑 学校建筑 文教
全部评论: 0
(发表评论请尊重他人、文明交流,拒绝发表有违法律、人身攻击的言论。每发表成功一条评论+1积分,被管理员删除的-1积分。)
关注ACS创意空间公众号
即可收阅最新资讯