韩国加平郡瑞文戴尔宾客酒店
  • Pearl
人气

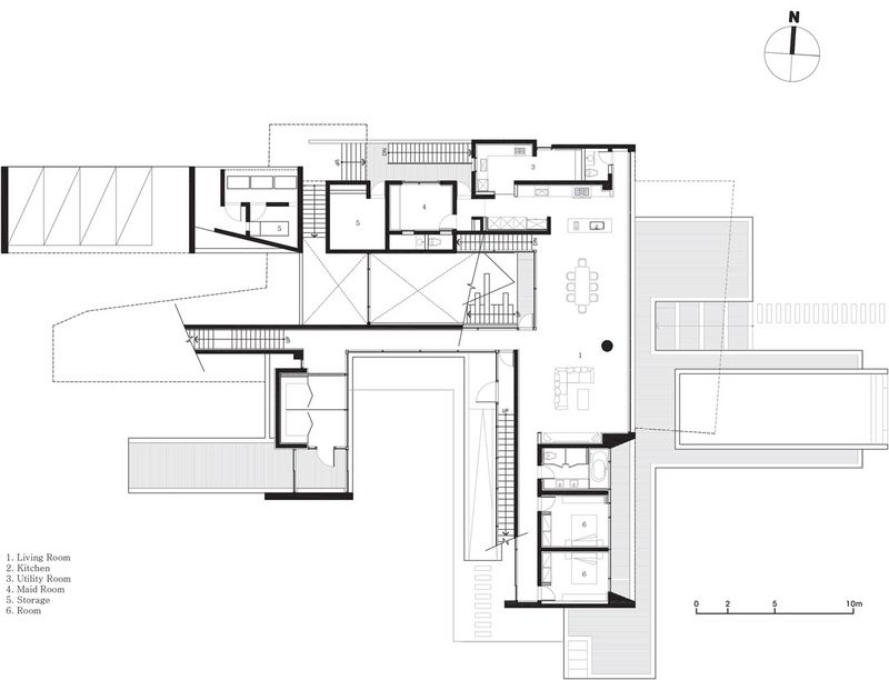
建筑布局与它所在场地之间的关系,以及它融入周边建筑环境的方法应该被考虑到。瑞文戴尔宾馆坐落在3300平方米(35520平方英尺)的基地上,这个尺度对于房子来说是相当大的。因此,建筑师很谨慎的放置结构,以防使房子看起来非常小,以及剩下的地块看起来像是荒地。

也许,像四肢朝不同方向伸展的这种方法可以把巨大的基地划分开来,并且使外表皮面积尽可能地最大化。对这个建筑来说,序列是一个非常重要的概念。不同于传统的房子,这座建筑的上部分和下部分是分离的,并且它长长的线性流动像散开的轴线向外伸展。

然后,视角随着建筑的序列,中断或者分离。这作为一个建筑中的新规则或实验性房屋是很难被评价的。但是,当你走进室内,并且向外望去,你会有一种感觉,在这个世界上存在一种你永远不会厌烦的神奇的自然景色,以及促使它形成的建筑;它见证着自然界每时每刻在每个地点的变化。

标签: 瑞文戴尔宾客酒店 酒店建筑 酒店空间
全部评论: 0
(发表评论请尊重他人、文明交流,拒绝发表有违法律、人身攻击的言论。每发表成功一条评论+1积分,被管理员删除的-1积分。)
关注ACS创意空间公众号
即可收阅最新资讯