巴西罗戴尔餐厅
  • Pearl
人气

罗戴尔是巴西圣保罗的一家非常传统的“churrascaria”(牛排餐厅),已有60年历史,它把它的第一间分店开设在一栋高层建筑中,寻求自身新的突破。

在巴西,“churrasco”指的是用长铁钎串肉在碳火上烤,这道菜肴源自于巴西南部,是风行于当地称为“vaqueiros”的牛仔中的一道经典菜式。

在罗戴尔餐厅的室内设计中,我们可以感受到源自这道菜肴的发祥地的气息:墙壁上挂着牛皮绳鞭,以牛皮做椅垫及墙面装饰,天花板和地板都选用暗色调的木板。

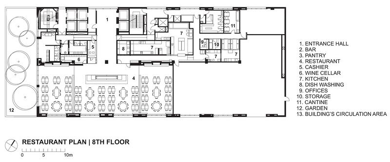
位于一楼的吧台是进入餐厅的必经之路,电梯能直通8楼抵达大堂。长长的烧烤台位于餐厅的中部,与餐厅中央的下沉空间一起将餐厅空间分成三部分。

标签: 罗戴尔餐厅 餐厅 时尚餐饮空间
全部评论: 0
(发表评论请尊重他人、文明交流,拒绝发表有违法律、人身攻击的言论。每发表成功一条评论+1积分,被管理员删除的-1积分。)
关注ACS创意空间公众号
即可收阅最新资讯