Office Tower Warsaw
  • 首页 > 商业空间 >
  • 发布于 11年前 来源:ACS创意空间
  • 版权声明:版权归作者所有,禁止商业使用、禁止匿名转载,分享时请注明出处及附上链接
  • shla
人气

 

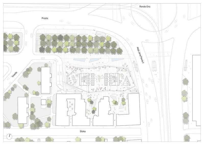
The new Office Tower Warsaw is situated in the financial district of central Warsaw, Poland. The 188 meter high-rise building is to replace the existing ‘Ilmet’ building and will stand out as a modern landmark clearly identifiable in the Warsaw skyline by its unique elegant shape and appearance.

 

The   of the competition was to design an office tower that will be a new landmark in the Warsaw skyline while at the same time capturing the full potential of the outstanding historic location.

 

The building consists of three individually stepped rectangular volumes with increasing heights towards the east. The façades create a subtle rhythm in the cityscape by slightly shifting inwards and outwards, and the inclined rooflines preserve optimal light conditions for the adjacent buildings. 

 

The design of the building offers a spatial coherence between roof and street level. The lobby at street level, with its spectacular shaped ceiling, corresponds with the sloping shapes of the rooftops, making the building perceive as a sculptural  .

 

The open lobby allows the people of Warsaw to pass into and through the building, connecting the plaza and park in front of the building with the courtyards of the historical tenement houses to the south. The building offers a number of attractive public areas and serves to complement the project’s prominent setting, as well as the entire neighbourhood.

 

The building is designed to reduce energy consumption with the goal of qualifying for the highest levels of sustainability certifications as BREEAM Excellent or LEED Gold status. The modular façade system with floor to ceiling glass elements, provide high levels of transparency as well as full integration of sun shading and light reflection shutters. The sloped rooftops are equipped with photovoltaic cells and elements for harvesting rainwater. The total sustainability approach is a combination of intelligent building management and minimizing technical installations by using passive elements.

标签: 建筑
相关推荐 >
全部评论: 0
(发表评论请尊重他人、文明交流,拒绝发表有违法律、人身攻击的言论。每发表成功一条评论+1积分,被管理员删除的-1积分。)
关注ACS创意空间公众号
即可收阅最新资讯