WISA 木质设计旅馆
  • 首页 > 酒店餐饮 > 酒店
  • 发布于 11年前 来源:ACS创意空间
  • 版权声明:版权归作者所有,禁止商业使用、禁止匿名转载,分享时请注明出处及附上链接
  • Pieta
人气
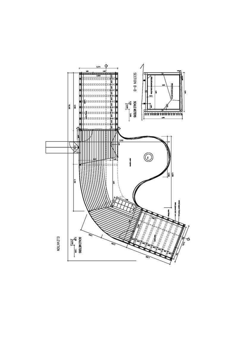
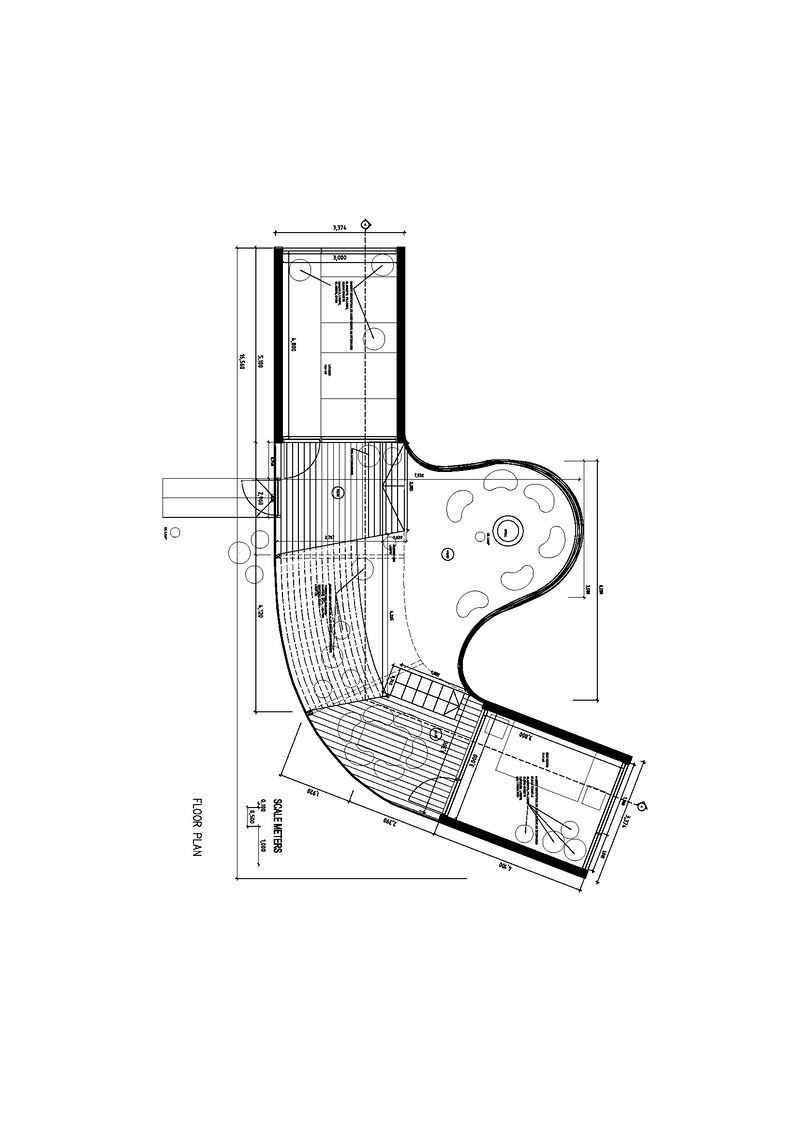
酒店处于一个被海水冲刷的小岛上的位置,给出了在暴风雨中浮动木块撞击岩石的设计理念。酒店有两个矩形的房间以及它们之间的自由外部空间。外部空间由房间和不同层之间夹角形成。理论上,通过使房间的壁变直并把它们砌至相同的水平线上,整个建筑可以建成矩形的。但其海上位置提供了试验弯曲木板的造船技术灵感。弯曲部分是由三块固定的8mm 的松木板组成,内外层是连续的,而中间层可以弯曲。室内装饰层是桦树板,结构是云杉,正面外观是高品质的无节松树板。外部用灰色保护漆处理,内部用涂彩处理。建筑与周围环境相互作用,有时远离它们有时融入到它们之中。这块覆盖着漂亮灰色铜绿的木板被分成板条状,呈现浅色、有机的木板结构,仿佛在岩石上可以看到的是一块被海水冲上来的木头。
标签: 建筑 室内 酒店
全部评论: 0
(发表评论请尊重他人、文明交流,拒绝发表有违法律、人身攻击的言论。每发表成功一条评论+1积分,被管理员删除的-1积分。)
关注ACS创意空间公众号
即可收阅最新资讯